?
本期《美家記》的業主張哥是設計專業出身,同時夫妻二人對原戶型結構不滿意,非常希望能夠打造一個極具特色、創新的空間,從原有確定一家裝企一直未拿出滿意的設計方案導致一直未動工,最后與美迪設計老師大膽的改造設計方案一拍即合,直接否定原一二個月未出滿意方案的設計公司,把房子交給美迪裝修。
美家信息
房子位置_洋湖十八克拉
面積戶型_135平小復式
設計師_紅星店設計師彭志紅
總體花費_18萬
家居風格_現代輕奢
入戶、走廊處的配色比較大膽,一進門就被吸引眼球,最下面的格子區,放些常穿的鞋子看起來整潔美觀。
過道的風格與玄關風格相統一,創新大膽又簡約時尚。

整個空間樓梯起到點睛之筆的作用,樓梯不僅起到了藝術的效果,同時將客廳和餐廳隔斷。沙發墻的現代裝飾畫以及黃色單人椅給客廳帶來俏皮和活力。
素凈整潔的吊頂及墻面,奠定了一個簡約又略帶輕奢的客廳基調,金色和大理石等輕奢元素的點綴,增添精致感。

有餐邊柜的餐廳簡直太完美!占滿整個墻面的餐邊柜,中間鏤空部分減少擁擠感,時尚簡約的餐桌餐椅搭配金色吊燈特別有質感,餐廳的氛圍溫馨精致又不失生活的儀式感。
全敞開式的書房,視野開闊,落落大方之余也更經久耐看,同時能使有限的空間充分發揮作用,原木家具以及落地窗帶來自然的親切感。

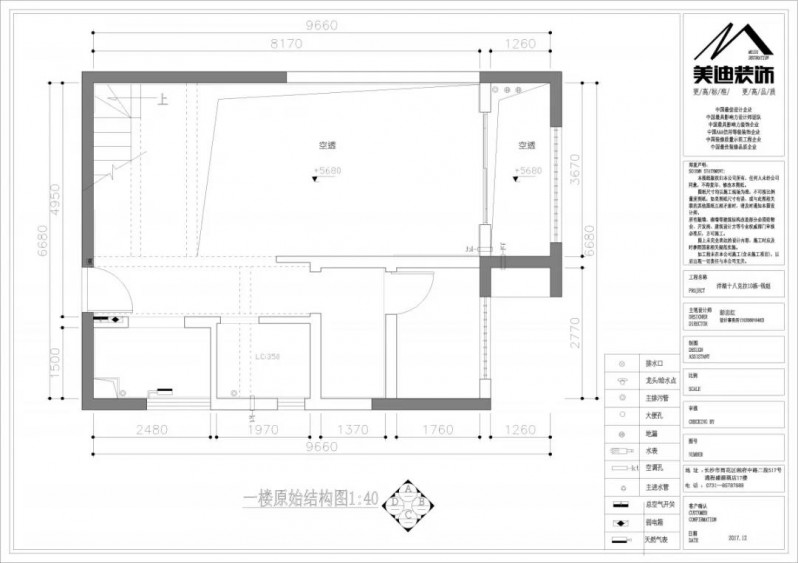
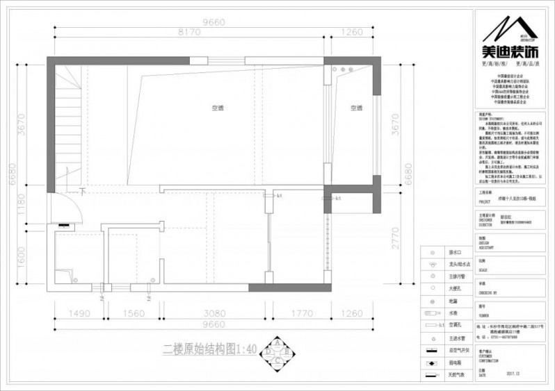
原始戶型圖


原戶型缺點:
一樓:客廳和客廳陽臺都為挑高(利用率不高)、廚房非常小 、一樓衛生間沒有干濕分區 、樓梯靠餐廳旁顯得非常小氣,無特色。
二樓:二樓有兩個洗手臺,業主不需要這么多衛生間、主臥空間太小,無衣帽間、無書房。
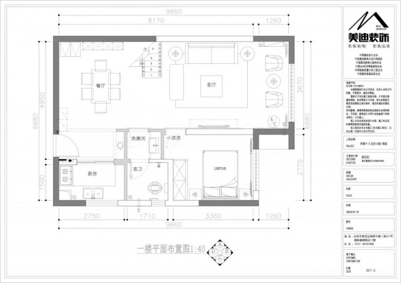
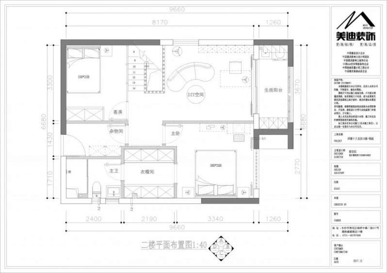
平面布置圖


戶型改造:
1、客廳和客廳陽臺預制樓面增加二樓利用率、廚房借衛生間局部空間,增大。
2、一樓衛生間借用原過道空間,增設洗漱間,也解決了入戶大門與一樓次臥相沖的風水。
3、樓梯調整至客廳與餐廳中間位置,把樓梯作為一種藝術品展示出來,原樓梯空間讓給餐廳,增加利用率。
4、原二樓95%的墻體填充墻全部拆除,把空間重新劃分。
5、客房在靠北面無采光,采用整面落地玻璃隔斷,北面空間做成全敞開式的書房,主臥加大空間,增加大型衣帽間。
1、美迪裝飾:你家里有哪個地方或者裝潢期間有哪個階段是令你感到最遺憾且值得改進地方?
我在設計方面非常嚴格,對我自己的房子效果期望非常高,我對彭志紅老師的設計方案非常認可!果斷選擇把房子交給美迪的團隊來做。
2、美迪裝飾:在整個裝修過程中,你覺得美迪裝飾的設計師、施工人員等工作人員帶給你最大額感受是什么呢?
業主:真的是所見及所得!跟我們夫妻兩的預期幾乎無差,感謝美迪,裝修是個麻煩事,選對了團隊真的很省心
3、美迪裝飾:你在家居裝潢和家居布置中可以給其他人一些建議嗎?
業主:前期一定要和設計師確定好方案,有什么要求一定要主動,設計師也好根據你的想法做方案,后續尊重設計師的設計,能夠更好的保證方案還原度高。
設計師簡介

/ 彭志紅 /
首席設計師
所屬門店:紅星店
擅長風格:簡歐、新中式、現代港式